|
|
Descriptions:
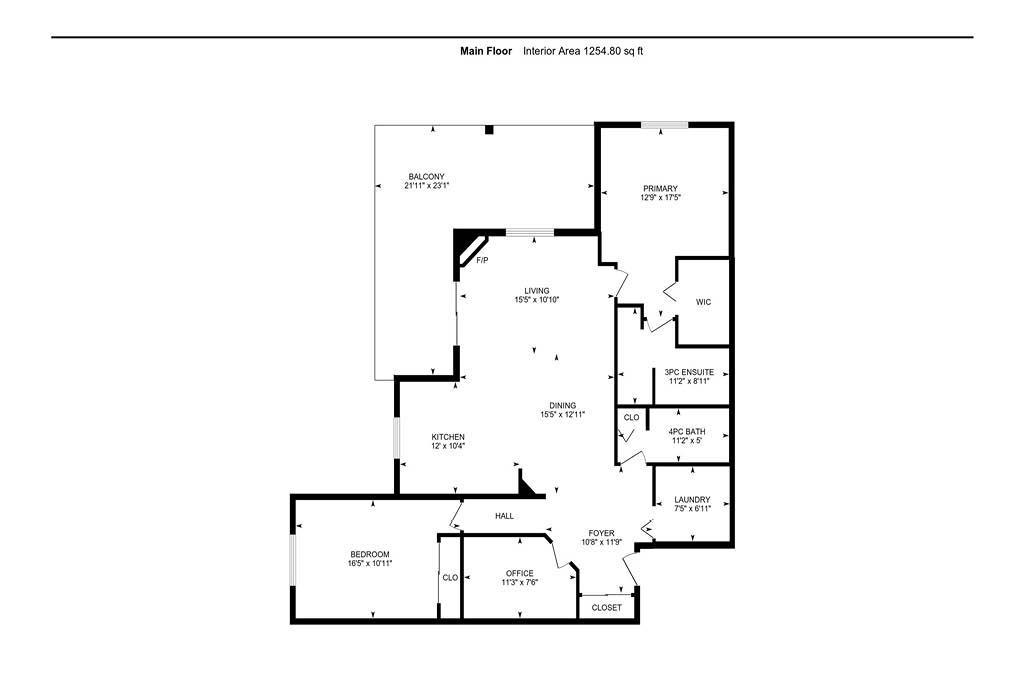
Welcome to Grande Lewis Estates! This bright, 2-bed plus den/office unit blends comfort and convenience with wonderful outdoor space. Enjoy central AC, a cozy gas fireplace, and that spacious balcony with serene views. The kitchen features crisp white cabinetry, tile backsplash, and ample natural light. Double oven is a great chef's touch! Primary bedroom features an ensuite and walk-in closet. In-suite laundry is a convenient touch. Includes 2 parking stalls (#331 & #336) and is well located in the heart of Lewis Estates with quick access to Henday, Whitemud, shopping, and amenities. Building updates are fully paid, with a strong reserve fund for peace of mind. A rare find in a prime location across the road from Lewis Estates Golf Course.
|
|
|
| Includes: |
|
Dishwasher-Built-In, Dryer, Refrigerator, Stove-Electric, Washer, Window Coverings |
|
|
|
|
|
| Site Influences: |
| Backs Onto Park/Trees, Corner Lot, Golf Nearby, Landscaped, Private Setting, Public Transportation, Schools, Shopping Nearby |
|
| Legal Description: |
| ACCESS Legal Description |
|
| Location & Listing Info: |
| Neighbourhood: |
Breckenridge Greens
|
|
|
|
|
|
|
| Property Info: |
|
| Property Type: |
Lowrise Apartment |
| Home Style: |
Single Level Apartment |
| Year Built: |
2004 |
| Total Floor Area: |
1,255 sq. ft. |
| Front Exposure: |
North
|
|
|
|
|
|
| Exterior: |
|
| Exterior: |
Backs Onto Park/Trees, Corner Lot, Golf Nearby, Landscaped, Private Setting, Public Transportation, Schools, Shopping Nearby |
| Front Exposure: |
North |
| Roof: |
Asphalt Shingles |
|
|
|
|
|
|
|
|
|
|
| Rooms: |
|
| Total Bedrooms: |
2
(Bedrooms Above: 2)
|
| Bathrooms: |
Full: 2
/ Half: 0
|
| Rooms Above: |
6 |
|
|
|
|
|
| Additional Info: |
|
| Heating: |
Y |
| Basement: |
None, No Basement |
| Basement Type: |
None, No Basement |
| Floor Finish: |
Vinyl Plank |
| Parking: |
Stall, See Remarks |
|
|
|
|
|
|
|
|
|
|
|
|
|
|
|
 |
Contact Brian Ray - 780-233-5788
904 10050 112st , Edmonton, Alberta, T5K 2J1
|
|
|
|
|
|
|
|
|
|
Copyright 2025 by the REALTORS® Association of Edmonton. All Rights Reserved. Data is deemed reliable but is not guaranteed accurate by the REALTORS® Association of Edmonton. Data was last updated November 20, 2025, 7:28 am. |
|
|
|
|
The data included on this website is deemed to be reliable, but is not guaranteed to be accurate by the REALTORS® Association of Edmonton.
MLS®, Multiple Listing Service®, and the associated logos are all registered certification marks owned by CREA and are used to identify real estate services provided by brokers and salespersons who are members of CREA. The trademarks REALTOR®, REALTORS® and the REALTOR® logo are controlled by The Canadian Real Estate Association (CREA) and identify real estate professionals who are members of CREA. Used under license.
|