|
|
Descriptions:
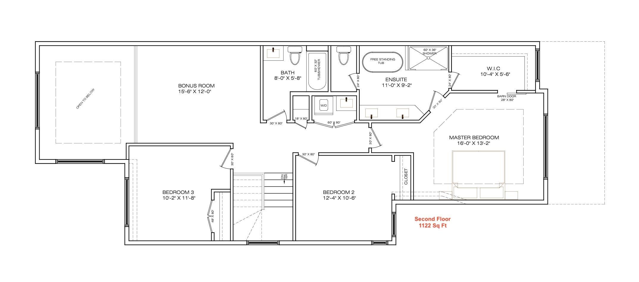
Pre-construction opportunity in Chappelle! This brand new detached home on a quiet close is to be built, offering buyers the chance to personalize select finishes and layout. Planned features include an open-to-above living room with fireplace, 9' ceilings, main floor bedroom with full bath, spice kitchen, and side entry. Upper level to offer a bonus room, spacious primary suite with 5-pc ensuite, two additional bedrooms, and second-floor laundry. Close to Donald R. Getty School, Dr. Anne Anderson High School, South Edmonton Common, and the upcoming largest Walmart in the area. Exceptional location and value!
|
|
|
| Includes: |
|
Garage Control, Garage Opener, Hood Fan, Builder Appliance Credit |
|
|
|
|
|
| Site Influences: |
| Airport Nearby, Cul-De-Sac, Playground Nearby, Schools, Shopping Nearby, Partially Fenced |
|
| Legal Description: |
| ACCESS Legal Description |
|
| Location & Listing Info: |
| Neighbourhood: |
Chappelle Area
|
|
| Lot Shape: |
Pie Shaped |
|
|
|
|
|
| Property Info: |
|
| Property Type: |
Detached Single Family |
| Home Style: |
2 Storey |
| Year Built: |
2026 |
| Total Floor Area: |
2,128 sq. ft. |
| Front Exposure: |
Southwest
|
|
|
|
|
|
| Exterior: |
|
| Exterior: |
Airport Nearby, Cul-De-Sac, Playground Nearby, Schools, Shopping Nearby, Partially Fenced |
| Front Exposure: |
Southwest |
| Roof: |
Asphalt Shingles |
|
|
|
|
|
|
|
|
|
|
| Rooms: |
|
| Total Bedrooms: |
4
(Bedrooms Above: 4)
|
| Bathrooms: |
Full: 3
/ Half: 0
|
| Rooms Above: |
7 |
|
|
|
|
|
| Additional Info: |
|
| Heating: |
Y |
| Basement: |
Full, Unfinished |
| Basement Type: |
Full, Unfinished |
| Floor Finish: |
Vinyl Plank |
| Parking: |
Double Garage Attached |
|
|
|
|
|
|
|
|
|
|
|
|
|
|
|
 |
Contact Brian Ray - 780-233-5788
904 10050 112st , Edmonton, Alberta, T5K 2J1
|
|
|
|
|
|
|
|
|
|
Copyright 2026 by the REALTORS® Association of Edmonton. All Rights Reserved. Data is deemed reliable but is not guaranteed accurate by the REALTORS® Association of Edmonton. Data was last updated February 26, 2026, 5:38 pm. |
|
|
|
|
The data included on this website is deemed to be reliable, but is not guaranteed to be accurate by the REALTORS® Association of Edmonton.
MLS®, Multiple Listing Service®, and the associated logos are all registered certification marks owned by CREA and are used to identify real estate services provided by brokers and salespersons who are members of CREA. The trademarks REALTOR®, REALTORS® and the REALTOR® logo are controlled by The Canadian Real Estate Association (CREA) and identify real estate professionals who are members of CREA. Used under license.
|