|
|
Descriptions:
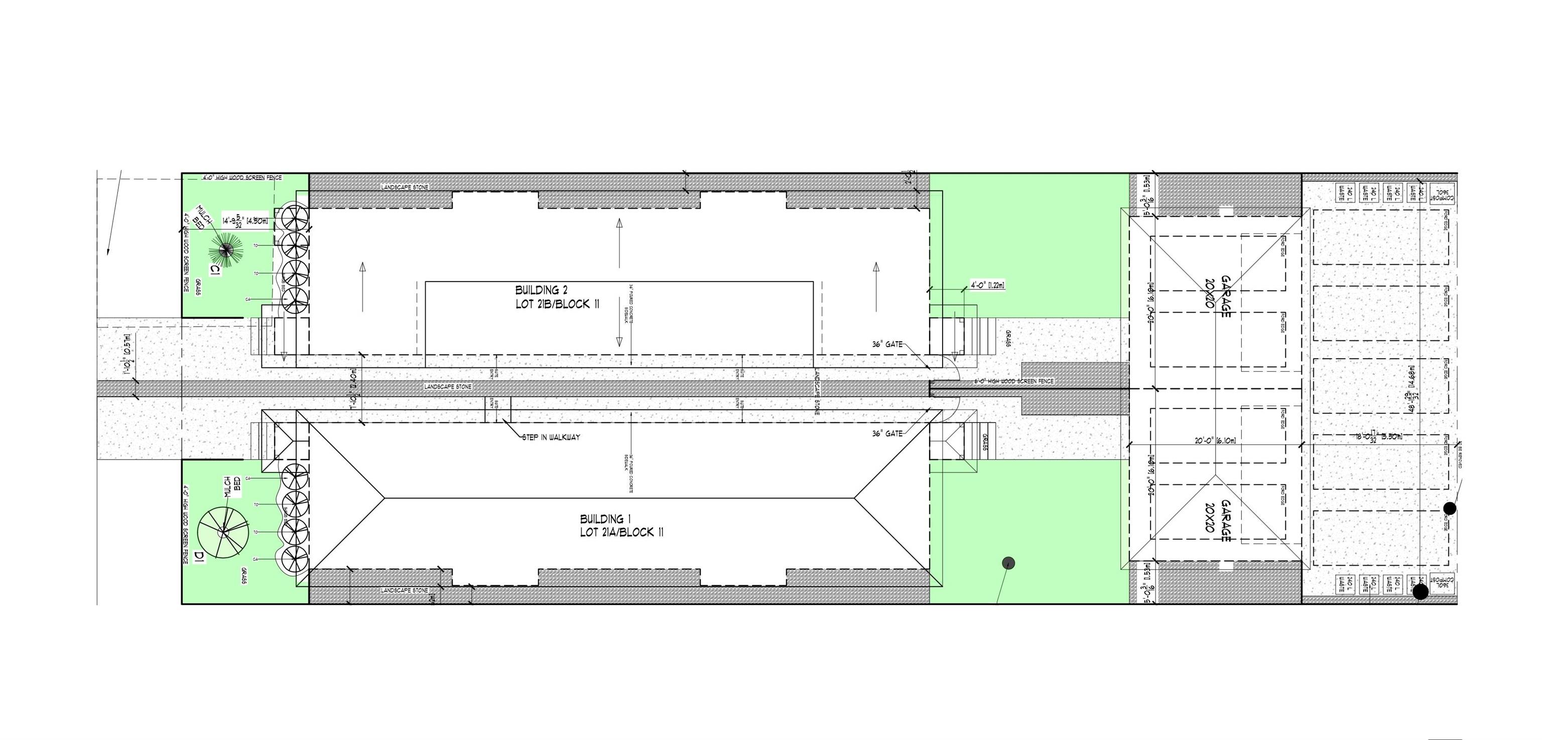
Purpose-built with quality, durability, and long term tenants in mind, this front/back duplex is located in the desirable, family-friendly community of High Park. There are 4 units, including legal basement suites, each with their own separate utility meter for convenience. Offering 8 bedrooms, 6 full baths, and 2 half baths across a layout that prioritizes privacy, function, and livability. Both the main floor and basement suites emphasize quality of life with premium finishes and functional layouts, including quartz countertops, spacious kitchens with islands, and abundant windows that bring natural light into all four suites. The main floor units feature their own fully landscaped and fenced low-maintenance yards, while a detached double garage plus an oversized parking pad provide ample parking. Ideally situated near parks, transit, amenities, walking distance to schools and only a 10 minute drive to West Edmonton Mall, this is a perfect turnkey investment in a central Edmonton location.
|
|
|
| Includes: |
|
Dishwasher-Built-In, Dryer, Garage Control, Garage Opener, Microwave Hood Fan, Refrigerator, Stove-Electric, Washer, See Remarks |
|
|
|
|
|
| Site Influences: |
| Fenced, Landscaped, Playground Nearby, Public Transportation, Schools, Shopping Nearby |
|
| Legal Description: |
| ACCESS Legal Description |
|
| Location & Listing Info: |
| Neighbourhood: |
High Park (Edmonton)
|
|
| Lot Shape: |
Rectangular |
|
|
|
|
|
| Property Info: |
|
| Property Type: |
Duplex Front and Back |
| Home Style: |
2 Storey |
| Year Built: |
2026 |
| Total Floor Area: |
2,486 sq. ft. |
| Front Exposure: |
East
|
|
|
|
|
|
| Exterior: |
|
| Exterior: |
Fenced, Landscaped, Playground Nearby, Public Transportation, Schools, Shopping Nearby |
| Front Exposure: |
East |
| Roof: |
Asphalt Shingles |
|
|
|
|
|
|
|
|
|
|
| Rooms: |
|
| Total Bedrooms: |
8
(Bedrooms Above: 6)
|
| Bathrooms: |
Full: 6
/ Half: 2
|
| Rooms Above: |
9 |
|
|
|
|
|
| Additional Info: |
|
| Heating: |
Y |
| Basement: |
Full, Finished |
| Basement Type: |
Full, Finished |
| Floor Finish: |
Carpet, Ceramic Tile, Laminate Flooring |
| Parking: |
Double Garage Detached |
|
|
|
|
|
|
|
|
|
|
|
|
|
|
|
 |
Contact Brian Ray - 780-233-5788
904 10050 112st , Edmonton, Alberta, T5K 2J1
|
|
|
|
|
|
|
|
|
|
Copyright 2026 by the REALTORS® Association of Edmonton. All Rights Reserved. Data is deemed reliable but is not guaranteed accurate by the REALTORS® Association of Edmonton. Data was last updated February 5, 2026, 3:58 am. |
|
|
|
|
The data included on this website is deemed to be reliable, but is not guaranteed to be accurate by the REALTORS® Association of Edmonton.
MLS®, Multiple Listing Service®, and the associated logos are all registered certification marks owned by CREA and are used to identify real estate services provided by brokers and salespersons who are members of CREA. The trademarks REALTOR®, REALTORS® and the REALTOR® logo are controlled by The Canadian Real Estate Association (CREA) and identify real estate professionals who are members of CREA. Used under license.
|