Agent Photo

Brian Ray 780-233-5788

Serving Real Estate needs in Edmonton, Stony Plain, Spruce Grove and Parkland County.


Read my Blog

 
Data Last Updated February 5, 2026, 3:58 am

 
Courtesy of Jessica Libon Exp Realty

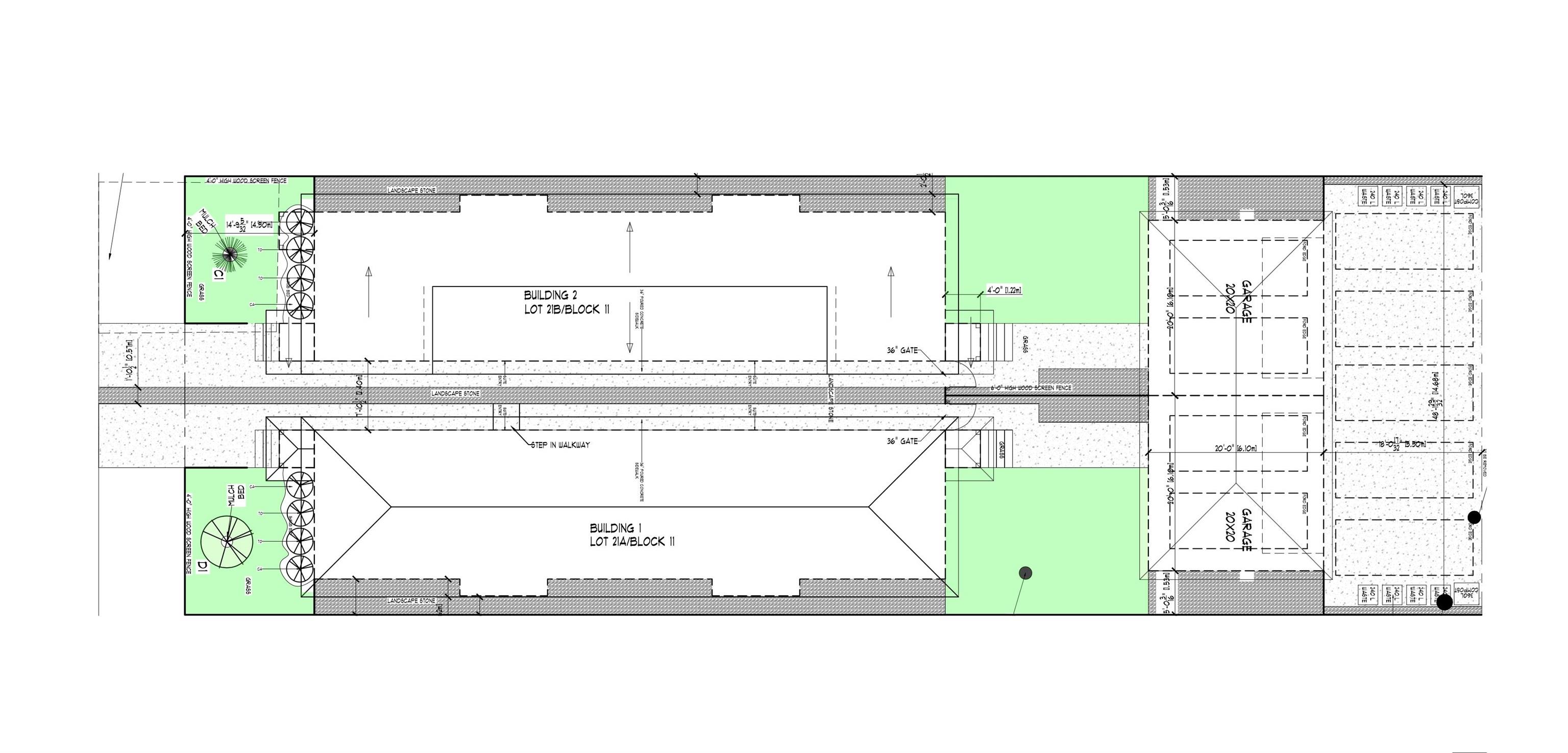
High Park (Edmonton) 2 Storey
Bedrooms 8 Bathrooms 6 Parking 2
No Floor Plan Available
$1,100,000
MLS® #:  E4470830
Address:  10920 & 10922 154 Street
Size: 2,486 sq. ft.
Days On Website:  ACCESS Days on Website

Neighbourhood Tour
Email to a Friend
Mortgage Calculator
Printable Version
Google Maps
Schedule a Showing
Contact Brian
For viewing call 780-233-5788

Descriptions:

Purpose-built with quality, durability, and long term tenants in mind, this front/back duplex is located in the desirable, family-friendly community of High Park. There are 4 units, including legal basement suites, each with their own separate utility meter for convenience. Offering 8 bedrooms, 6 full baths, and 2 half baths across a layout that prioritizes privacy, function, and livability. Both the main floor and basement suites emphasize quality of life with premium finishes and functional layouts, including quartz countertops, spacious kitchens with islands, and abundant windows that bring natural light into all four suites. The main floor units feature their own fully landscaped and fenced low-maintenance yards, while a detached double garage plus an oversized parking pad provide ample parking. Ideally situated near parks, transit, amenities, walking distance to schools and only a 10 minute drive to West Edmonton Mall, this is a perfect turnkey investment in a central Edmonton location.

Includes: Dishwasher-Built-In, Dryer, Garage Control, Garage Opener, Microwave Hood Fan, Refrigerator, Stove-Electric, Washer, See Remarks
Site Influences:
Fenced, Landscaped, Playground Nearby, Public Transportation, Schools, Shopping Nearby
Legal Description:
ACCESS Legal Description
Location & Listing Info:
Neighbourhood: High Park (Edmonton)
Lot Shape: Rectangular
Zone: Zone 21
Property Info:
Property Type: Duplex Front and Back
Home Style: 2 Storey
Year Built: 2026
Total Floor Area: 2,486 sq. ft.
Front Exposure: East
Exterior:
Exterior: Fenced, Landscaped, Playground Nearby, Public Transportation, Schools, Shopping Nearby
Front Exposure: East
Roof: Asphalt Shingles
Financial & Possession:
Monthly Fee: ACCESS Monthly Fee
Rooms:
Total Bedrooms: 8  (Bedrooms Above: 6)
Bathrooms: Full: 6 / Half: 2
Rooms Above: 9
Additional Info:
Heating: Y
Basement: Full, Finished
Basement Type: Full, Finished
Floor Finish: Carpet, Ceramic Tile, Laminate Flooring
Parking: Double Garage Detached
JOIN NOW to access ALL LISTINGS.
Access includes addresses, days on website and full comments.
> Property History > Days On Website > Previous Price
Schedule A Showing
Free Evaluation
Contact Brian
Property History
For viewing call 780-233-5788
Contact Brian Ray - 780-233-5788
904 10050 112st , Edmonton, Alberta, T5K 2J1
Required Field
Copyright 2026 by the REALTORS® Association of Edmonton. All Rights Reserved. Data is deemed reliable but is not guaranteed accurate by the REALTORS® Association of Edmonton. Data was last updated February 5, 2026, 3:58 am.

Brian Ray, eXp Realty
904 10050 112st , Edmonton, Alberta T5K 2J1
Tel: 780-233-5788 Cell: 780-233-5788
© Copyright 2026, Real Estate Websites by Redman Technologies Inc. | Privacy Policy | Sitemap
The data included on this website is deemed to be reliable, but is not guaranteed to be accurate by the REALTORS® Association of Edmonton.

MLS®, Multiple Listing Service®, and the associated logos are all registered certification marks owned by CREA and are used to identify real estate services provided by brokers and salespersons who are members of CREA. The trademarks REALTOR®, REALTORS® and the REALTOR® logo are controlled by The Canadian Real Estate Association (CREA) and identify real estate professionals who are members of CREA. Used under license.