|
|
Descriptions:
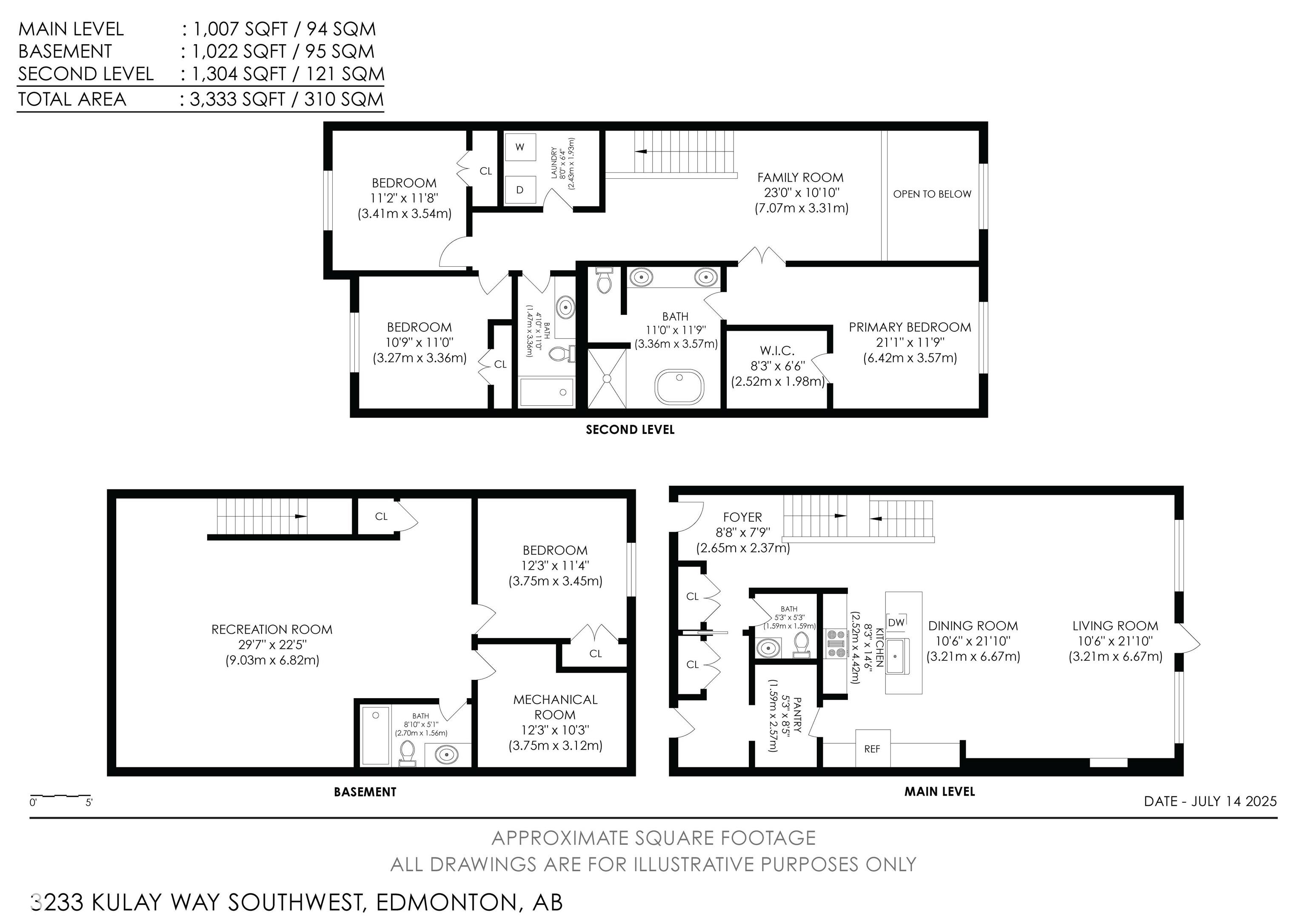
FULLY FINISHED BASEMENT! This modern 2-storey home by Cantiro is located in the sought-after community of Keswick! Offering 4 beds, 3.5 baths & over 3400 sqft of finished living space, this home is built for ENTERTAINING. The main level features a spacious dining area, a large pantry with built-in coffee bar, & a chef's DREAM kitchen equipped with stainless steel appliances, granite counters & crisp white cabinetry. Stylish LVP flooring & a soft neutral colour scheme enhance the design. A bright loft with open-to-below adds volume upstairs, along with 3 bedrooms including a spa-like 5pc ensuite & an additional full 4pc bath. Stay comfortable year-round with CENTRAL A/C. The fully finished basement includes a 4th bedroom & a 4pc bath. Enjoy low-maintenance outdoor living with artificial turf landscaping. The double attached garage includes a 220V EV charger and a sleek textured ceiling. Close to schools, trails, shopping, and quick access to Anthony Henday & Terwillegar. All this home needs is YOU!
|
|
|
| Includes: |
|
Dishwasher-Built-In, Dryer, Garage Control, Garage Opener, Hood Fan, Refrigerator, Stove-Electric, Washer, Window Coverings |
|
|
|
|
|
| Site Influences: |
| Fenced, Flat Site, Golf Nearby, Landscaped, Level Land, Low Maintenance Landscape, No Back Lane, Playground Nearby, Public Transportation, Schools, Shopping Nearby, Ski Hill Nearby |
|
| Legal Description: |
| ACCESS Legal Description |
|
| Location & Listing Info: |
|
|
| Lot Shape: |
Rectangular |
|
|
|
|
|
| Property Info: |
|
| Property Type: |
Detached Single Family |
| Home Style: |
2 Storey |
| Year Built: |
2022 |
| Total Floor Area: |
2,314 sq. ft. |
| Front Exposure: |
West
|
|
|
|
|
|
| Exterior: |
|
| Exterior: |
Fenced, Flat Site, Golf Nearby, Landscaped, Level Land, Low Maintenance Landscape, No Back Lane, Playground Nearby, Public Transportation, Schools, Shopping Nearby, Ski Hill Nearby |
| Front Exposure: |
West |
| Roof: |
Asphalt Shingles |
|
|
|
|
|
|
|
|
|
|
| Rooms: |
|
| Total Bedrooms: |
4
(Bedrooms Above: 3)
|
| Bathrooms: |
Full: 3
/ Half: 1
|
| Rooms Above: |
8 |
|
|
|
|
|
| Additional Info: |
|
| Heating: |
Y |
| Basement: |
Full, Finished |
| Basement Type: |
Full, Finished |
| Floor Finish: |
Vinyl Plank |
| Parking: |
Double Garage Attached |
|
|
|
|
|
|
|
|
|
|
|
|
|
|
|
 |
Contact Brian Ray - 780-233-5788
904 10050 112st , Edmonton, Alberta, T5K 2J1
|
|
|
|
|
|
|
|
|
|
Copyright 2025 by the REALTORS® Association of Edmonton. All Rights Reserved. Data is deemed reliable but is not guaranteed accurate by the REALTORS® Association of Edmonton. Data was last updated November 13, 2025, 10:58 pm. |
|
|
|
|
The data included on this website is deemed to be reliable, but is not guaranteed to be accurate by the REALTORS® Association of Edmonton.
MLS®, Multiple Listing Service®, and the associated logos are all registered certification marks owned by CREA and are used to identify real estate services provided by brokers and salespersons who are members of CREA. The trademarks REALTOR®, REALTORS® and the REALTOR® logo are controlled by The Canadian Real Estate Association (CREA) and identify real estate professionals who are members of CREA. Used under license.
|